VIA MAURO MACCHI 34

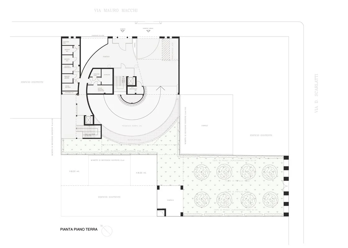
The building fits elegantly into its urban context, creating a dialogue between the classicism of the surrounding buildings and its modern facade. Curved side sails embrace the central body, almost inviting one to discover its interior spaces and giving the building a distinctive aesthetic. The outcropping elements on the roof recall the details of the nearby Milan Central Station, ensuring brightness and breath to the attic floor covered by a striking barrel vault.